LE ROBINET
Date
Octobre 2024
Type de dessin
Dessin d’observation
Technique
Promarker et crayons
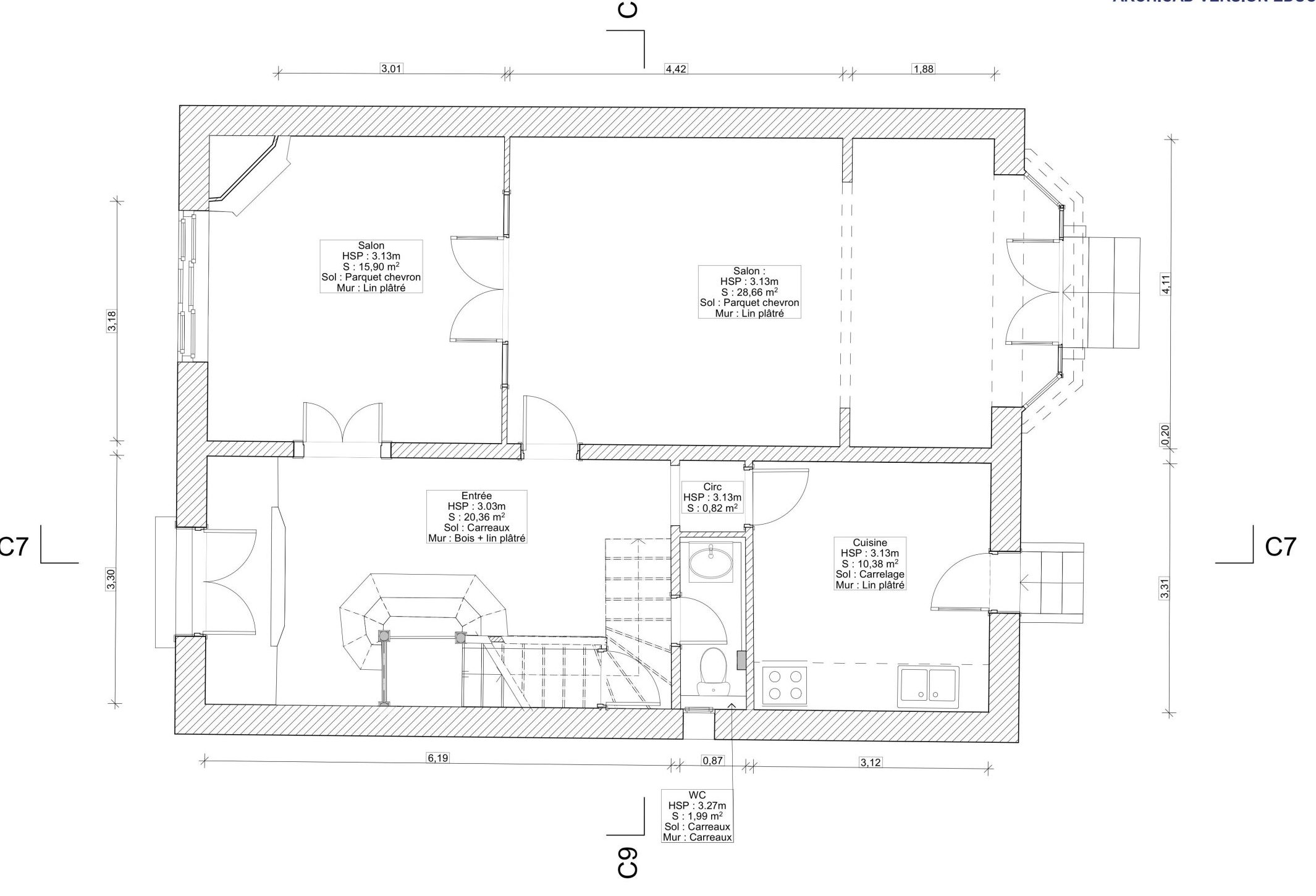
Dans ce projet de rénovation d’une maison au Grand Maurian, notre objectif était de moderniser les espaces tout en conservant le charme de l’ancien. Nous avons voulu créer un lieu de vie convivial, en privilégiant une cuisine ouverte et une ouverture plus grande sur le jardin. L’aménagement a été pensé pour inclure trois chambres, trois salles de bain et un bureau, offrant ainsi un cadre de vie à la fois pratique et chaleureux. <ul style= »font-size: 16px; font-style: normal; font-weight: 400; color: rgb(122, 122, 122); text-align: start; white-space-collapse: collapse; background-color: rgb(247, 247, 249); »><li style= »font-size: 16px; »>Style simple, mélange de <span><span style= »font-weight: 700; »>moderne et d’ancien </span><span style= »font-weight: 700; »></span></span>Espace <span style= »font-weight: 700; »>convivial </span>pour recevoir</li><li style= »font-size: 16px; »>Cuisine ouvert</li><li style= »font-size: 16px; »>Plus d’ouverture et d’<span style= »font-weight: 700; »>accès au jardin-</span></li><li style= »font-size: 16px; »>Conservation de l’<span style= »font-weight: 700; »>escalier</span></li><li style= »font-size: 16px; »>3 chambres</li><li style= »font-size: 16px; »>3 salles de bain</li><li style= »font-size: 16px; »>1 bureau</li><li style= »font-size: 16px; »><span style= »font-weight: 700; »>Budget </span>: 250 000 €@</li></ul>
RENDU FINAL
Dans ce projet de rénovation d’une maison au Grand Maurian, notre objectif était de moderniser les espaces tout en conservant le charme de l’ancien.
Le grand morne
Dans ce projet de rénovation d’une maison au Grand Maurian, notre objectif était de moderniser les espaces tout en conservant le charme de l’ancien.


Le grand morne
Dans ce projet de rénovation d’une maison au Grand Maurian, notre objectif était de moderniser les espaces tout en conservant le charme de l’ancien.