Dans ce projet de rénovation d’une maison au Grand Maurian, notre objectif était de moderniser les espaces tout en conservant le charme de l’ancien.
Nous avons voulu créer un lieu de vie convivial, en privilégiant une cuisine ouverte et une ouverture plus grande sur le jardin. L’aménagement a été pensé pour inclure trois chambres, trois salles de bain et un bureau, offrant ainsi un cadre de vie à la fois pratique et chaleureux.
PLAN RDC
Ouverture sur le jardin et création d’un cocon grâce à la verrière qui sépare le salon de la salle à manger.
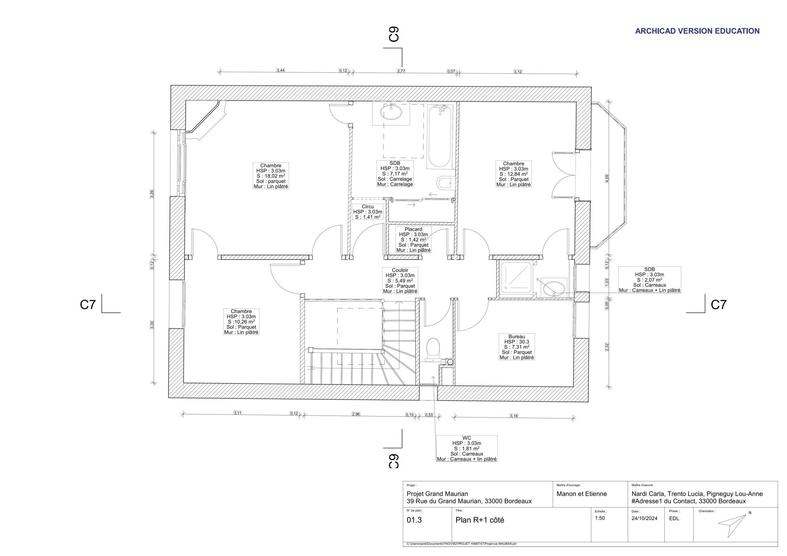
PLAN R+1
Création de deux suites parentales avec dressing, d’un bureau et d’un escalier pour accéder aux combles.